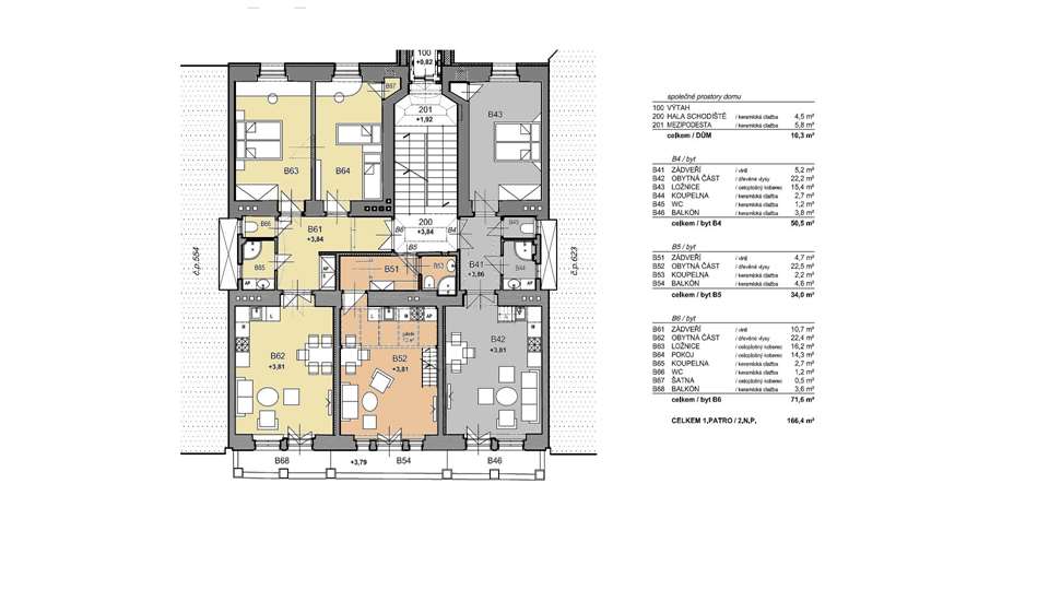
Byt č. 04